Cocción
- Temperatura: 30°C – 260°C
- Hasta 9 pasos de cocción
- CLIMA.Control: humedad o aire seco regulable en un 10%
- Cocción con sonda al corazón y función Delta T
Programas
- Más de 1000 programas
- MIND.Maps™: dibuja los procesos de cocción directamente en la pantalla
Características técnicas de serie
- ROTOR.Klean™: sistema de lavado automático
- Cámara de cocción moldeada en acero inoxidable AISI 316 L
- Triple cristal
- Iluminación de la cámara de cocción mediante luces LED empotradas en la puerta
- Soportes para bandejas con sistema antivuelco
- Sistema de recogida de gotas integrado en la puerta y funcional incluso con la puerta abierta
- Sistema de ventiladores múltiples de 4 velocidades y elementos de calor de alto rendimiento
- Contenedor de detergente DET&Rinse™ integrado
- Wi-Fi / USB de datos: descarga/carga de datos HACCP
- Wi-Fi / USB de datos: descarga/carga de programas
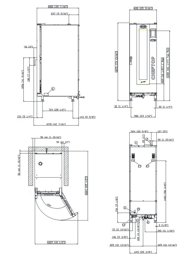
Medidas
- Ancho: 650 mm
- Fondo: 1002 mm
- Alto: 1875 mm
- Peso: 285 kg
- Voltaje: 380-415V 3N~ | 220-240V 3~
- Potencia eléctrica: 35,5kW

